静岡市葵区屋形町の貸事務所。
エクセレント屋形町(1F-RIGHT) (静岡県静岡市葵区屋形町32-3) の物件詳細
| 交通 | 賃料
共益費等 |
礼金 敷金 |
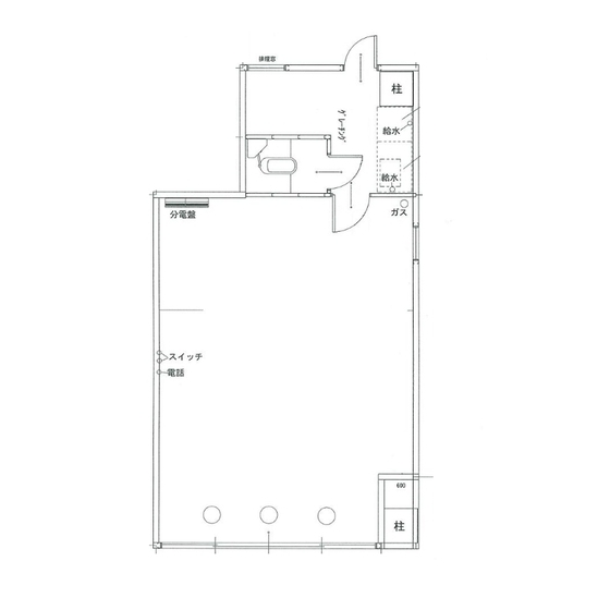
間取 専有面積 |
種類
築年 |
|---|---|---|---|---|
|
しずてつジャストライン 屋形町 徒歩1分 |
7.15万円(税込) 0円 |
0円 130,000円 |
事業 34.04㎡ |
貸事務所
1984年01月20日 |
PRコメント
伊勢丹まで600メートル、大小様々なお店まで歩ける立地が魅力静岡市葵区屋形町のエクセレント屋形町。静岡市立番町小学校、静岡市立末広中学校学区の、7万円〜8万円の貸事務所です。しずてつバス停まで徒歩1分。
部屋の特徴・設備
都市ガス・上水道・下水道・電気
物件概要
| 所在地 | 静岡県静岡市葵区屋形町32-3 | ||
|---|---|---|---|
| 問い合わせ番号 | 1083-5 | 駐車場 |
なし |
| 入居可能日 | 即入居可能 | 契約期間 |
2年 更新有 |
| 損害保険 | 要加入(駐車場単体契約除く) | 更新 | 随時 |
| 階数 | 5階建て 1階部分 | 総戸数 | 16戸 |
| 構造 | 鉄筋コンクリート | 取引態様 | 一般媒介 |
| 仲介 | 株式会社第一不動産 静岡(9)第5704号 | ||
| 仲介手数料 | 71,500円(税込) | ||
| 備考 |
賃貸保証審査有
賃貸の契約金をクレジットカードで決済できます。 |
||
| めやす賃料 | 71,500円 |
|---|
- めやす賃料とは賃料、共益費・管理費、敷引金、礼金、更新料を含み、 賃料等条件の改定がないものと仮定して
4年間賃借した場合(定期借家の場合は、契約期間)の1ヶ月当たりの金額です。 - ※ 敷引金は、敷金の償却、保証金の償却など、預かった金銭から必ず差し引くものをいいます。
- ※ めやす賃料は、消費者に適切な情報を提供するための表示であり、事業者に一時金を推奨するものではありません。
- ※ めやす賃料は、実際の総支払額と異なる場合があります。詳しくは、不動産会社にご確認ください。
| 周辺地図
マーカーの場所はgoogleマップで自動表示されたものです。
|
|---|






