静岡市葵区大岩本町の一人暮らしの賃貸マンション。
なごみマンション(104) (静岡県静岡市葵区大岩本町1-12) の物件詳細
| 交通 | 賃料
共益費等 |
礼金 敷金 |
間取 専有面積 |
種類
築年 |
|---|---|---|---|---|
|
JR東海道本線 静岡駅 徒歩30分 しずてつジャストライン 安東一丁目 徒歩4分 |
5.3万円 3,300円(税込) |
0円 0円 |
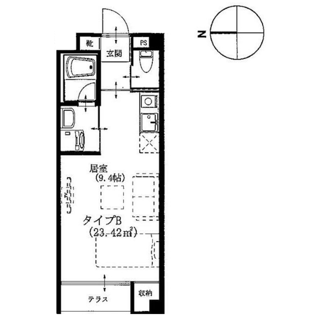
ワンルーム 23.42㎡ |
賃貸マンション
2019年09月01日 |
PRコメント
通勤・買物に便利な好立地のマンション。静岡市葵区大岩本町のなごみマンション。静岡市立安東小学校、静岡市立安東中学校学区の一人暮らし、5万円〜6万円の賃貸マンションです。JR東海道本線 静岡駅 徒歩30分、しずてつバス停まで徒歩4分。しずてつストア安東店まで950m!
部屋の特徴・設備
オートロック・宅配BOX・プロパンガス・上水道・下水道・電気・給湯・シャワー・エアコン・照明器具・モニタ付インターホン・室内洗濯機置場・洗髪洗面化粧台・バルコニー・B・T別室・トイレ・洗面所独立・IHクッキングヒータ・シューズボックス
物件概要
| 所在地 | 静岡県静岡市葵区大岩本町1-12 | ||
|---|---|---|---|
| 問い合わせ番号 | 14486-11 | 駐車場 |
有 |
| 入居可能日 | 即入居可能 | 契約期間 |
2年 更新有 |
| 損害保険 | 要加入(駐車場単体契約除く) | 更新 | 随時 |
| 階数 | 3階建て 1階部分 | 総戸数 | 18戸 |
| 構造 | 鉄骨造 | 取引態様 | 一般媒介 |
| 学区 |
小学校:静岡市立安東小学校 750m 中学校:静岡市立安東中学校 950m |
免許番号 | 株式会社第一不動産 静岡(10)第5704号 |
| 所属団体 | 全日本不動産協会 静岡県本部・東海不動産公正取引協議会 | ||
| 駐車料 | 10,000円(税込) | 更新料 | 16,500円 |
| 仲介手数料 | 68,300円(税込) | 自治会費 | 500円 |
| その他一時金8 | 16,500円(税込) | ||
| 備考 |
保証会社加入要(PMCファイナンス 初回保証料:賃料60%(下限30,000円)、月額440円(税込)、更新1年毎1万円) 鍵交換代16,500円 自治会費500円/月 Fサポートplus:2,420円/月 更新料16,500円(新賃料) 退去時実費精算 Bタイプ
賃貸の契約金をクレジットカードで決済できます。 |
||
| めやす賃料 | 56,643円 |
|---|
- めやす賃料とは賃料、共益費・管理費、敷引金、礼金、更新料を含み、 賃料等条件の改定がないものと仮定して
4年間賃借した場合(定期借家の場合は、契約期間)の1ヶ月当たりの金額です。 - ※ 敷引金は、敷金の償却、保証金の償却など、預かった金銭から必ず差し引くものをいいます。
- ※ めやす賃料は、消費者に適切な情報を提供するための表示であり、事業者に一時金を推奨するものではありません。
- ※ めやす賃料は、実際の総支払額と異なる場合があります。詳しくは、不動産会社にご確認ください。
| 周辺地図
マーカーの場所はgoogleマップで自動表示されたものです。
|
|---|





























