静岡市駿河区中野新田の貸事務所。
静岡インタービル(2F) (静岡県静岡市駿河区中野新田277-2) の物件詳細
| 交通 | 賃料
共益費等 |
礼金 敷金 |
間取 専有面積 |
種類
築年 |
|---|---|---|---|---|
|
JR東海道本線 静岡駅 徒歩33分 しずてつジャストライン 大里中学校 徒歩3分 |
19.8万円(税込) 0円 |
0円 540,000円 |
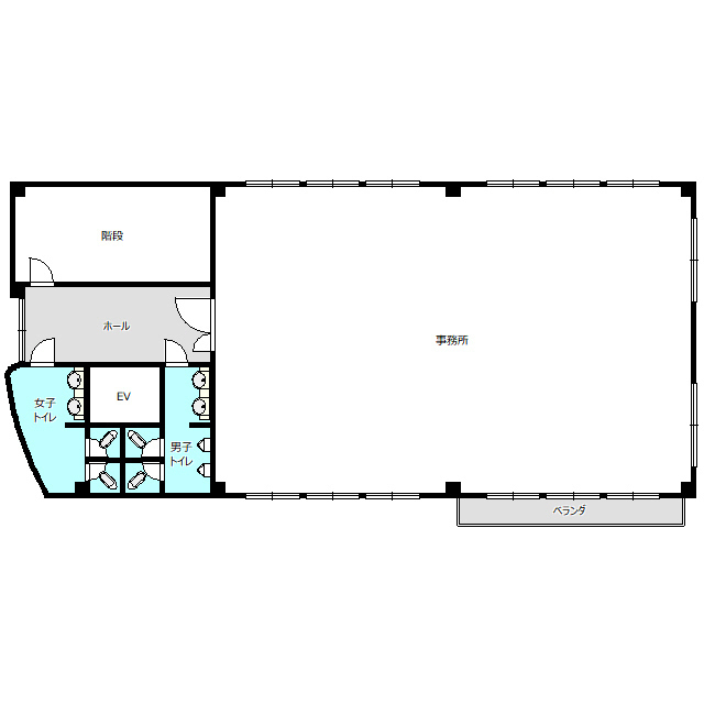
事業 149.41㎡ |
貸事務所
1989年05月01日 |
PRコメント
ワンフロア1テナント。静岡市駿河区中野新田の静岡インタービル。、19万円〜20万円の貸事務所です。JR東海道本線 静岡駅 徒歩33分、しずてつバス停まで徒歩3分。
部屋の特徴・設備
エレベータ・プロパンガス・上水道・電気・トイレ
物件概要
| 所在地 | 静岡県静岡市駿河区中野新田277-2 | ||
|---|---|---|---|
| 問い合わせ番号 | 15698-3 | 駐車場 |
有 |
| 入居可能日 | 即入居可能 | 契約期間 |
2年 更新有 |
| 損害保険 | 要加入(駐車場単体契約除く) | 更新 | 随時 |
| 階数 | 4階建て 2階部分 | 総戸数 | 4戸 |
| 構造 | 鉄骨造 | 取引態様 | 一般媒介 |
| 仲介 | 株式会社第一不動産 静岡(9)第5704号 | ||
| 駐車料 | 5,500円(税込) | 仲介手数料 | 203,500円(税込) |
| 備考 |
賃貸保証審査有 P有(空位置要確認) 賃料に共益費・警備料含む 共用部に男女別トイレ有 土日祝日利用可
賃貸の契約金をクレジットカードで決済できます。 |
||
| めやす賃料 | 198,000円 |
|---|
- めやす賃料とは賃料、共益費・管理費、敷引金、礼金、更新料を含み、 賃料等条件の改定がないものと仮定して
4年間賃借した場合(定期借家の場合は、契約期間)の1ヶ月当たりの金額です。 - ※ 敷引金は、敷金の償却、保証金の償却など、預かった金銭から必ず差し引くものをいいます。
- ※ めやす賃料は、消費者に適切な情報を提供するための表示であり、事業者に一時金を推奨するものではありません。
- ※ めやす賃料は、実際の総支払額と異なる場合があります。詳しくは、不動産会社にご確認ください。
| 周辺地図
マーカーの場所はgoogleマップで自動表示されたものです。
|
|---|






