静岡市葵区伝馬町の貸店舗・事務所。
フォレスト静岡伝馬町(4F) (静岡県静岡市葵区伝馬町8-13) の物件詳細
| 交通 | 賃料
共益費等 |
礼金 敷金 |
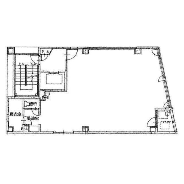
間取 専有面積 |
種類
築年 |
|---|---|---|---|---|
|
JR東海道本線 静岡駅 徒歩5分 |
24.2万円(税込) 0円 |
220,000円 1,320,000円 |
事業 81.11㎡ |
貸店舗・事務所
1992年08月01日 |
PRコメント
静岡市葵区伝馬町のフォレスト静岡伝馬町。、24万円〜25万円の貸店舗・事務所です。JR東海道本線 静岡駅 徒歩5分。
部屋の特徴・設備
エレベータ・上水道・電気・トイレ
物件概要
| 所在地 | 静岡県静岡市葵区伝馬町8-13 | ||
|---|---|---|---|
| 問い合わせ番号 | 3124-2 | 駐車場 |
なし |
| 入居可能日 | 即入居可能 | 契約期間 |
2年 更新有 |
| 損害保険 | 要加入(駐車場単体契約除く) | 更新 | 随時 |
| 階数 | 8階建て 地下1階 4階部分 | 総戸数 | 11戸 |
| 構造 | 鉄骨造 | 取引態様 | 一般媒介 |
| 仲介 | 株式会社第一不動産 静岡(9)第5704号 | ||
| 仲介手数料 | 242,000円(税込) | ||
| 備考 |
保証会社加入必須 設備譲渡有償(エステサロン内装) 町費、商店会費等別途有 敷金:事務所利用の場合は3ヶ月 解約予告:事務所3ヶ月前予告/店舗6ヶ月前予告 エアコンは残置物 解約時は事務所仕様戻しになります
賃貸の契約金をクレジットカードで決済できます。 |
||
| めやす賃料 | 246,583円 |
|---|
- めやす賃料とは賃料、共益費・管理費、敷引金、礼金、更新料を含み、 賃料等条件の改定がないものと仮定して
4年間賃借した場合(定期借家の場合は、契約期間)の1ヶ月当たりの金額です。 - ※ 敷引金は、敷金の償却、保証金の償却など、預かった金銭から必ず差し引くものをいいます。
- ※ めやす賃料は、消費者に適切な情報を提供するための表示であり、事業者に一時金を推奨するものではありません。
- ※ めやす賃料は、実際の総支払額と異なる場合があります。詳しくは、不動産会社にご確認ください。
| 周辺地図
マーカーの場所はgoogleマップで自動表示されたものです。
|
|---|






