静岡市葵区紺屋町の貸事務所。
ガーデンスクエア第7ビル(4F-1・2) (静岡県静岡市葵区紺屋町4-27) の物件詳細
| 交通 | 賃料
共益費等 |
礼金 敷金 |
間取 専有面積 |
種類
築年 |
|---|---|---|---|---|
|
JR東海道本線 静岡駅 徒歩6分 |
19.5万円(税込) 0円 |
0円 1,063,200円 |
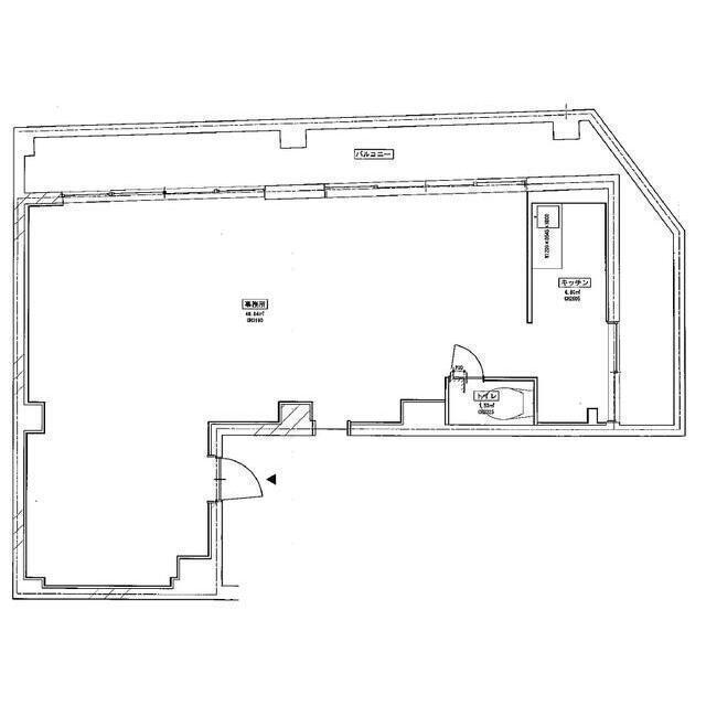
事業 102.97㎡ |
貸事務所
1972年03月28日 |
PRコメント
静岡市葵区紺屋町のガーデンスクエア第7ビル。、19万円〜20万円の貸事務所です。JR東海道本線 静岡駅 徒歩6分。
部屋の特徴・設備
エレベータ・都市ガス・上水道・電気
物件概要
| 所在地 | 静岡県静岡市葵区紺屋町4-27 | ||
|---|---|---|---|
| 問い合わせ番号 | 3315-13 | 駐車場 |
なし |
| 入居可能日 | 即入居可能 | 契約期間 |
2年 更新有 |
| 損害保険 | 要加入(駐車場単体契約除く) | 更新 | 随時 |
| 階数 | 5階建て 4階部分 | 総戸数 | 12戸 |
| 構造 | 鉄筋コンクリート | 取引態様 | 一般媒介 |
| 仲介 | 株式会社第一不動産 静岡(9)第5704号 | ||
| 仲介手数料 | 194,920円(税込) | ||
| 備考 |
賃貸保証審査有
賃貸の契約金をクレジットカードで決済できます。 |
||
| めやす賃料 | 194,920円 |
|---|
- めやす賃料とは賃料、共益費・管理費、敷引金、礼金、更新料を含み、 賃料等条件の改定がないものと仮定して
4年間賃借した場合(定期借家の場合は、契約期間)の1ヶ月当たりの金額です。 - ※ 敷引金は、敷金の償却、保証金の償却など、預かった金銭から必ず差し引くものをいいます。
- ※ めやす賃料は、消費者に適切な情報を提供するための表示であり、事業者に一時金を推奨するものではありません。
- ※ めやす賃料は、実際の総支払額と異なる場合があります。詳しくは、不動産会社にご確認ください。
| 周辺地図
マーカーの場所はgoogleマップで自動表示されたものです。
|
|---|

















